欢迎来到LOL雷竞技苹果官方版下载 官方网站!

23年专注喷涂自动化整体解决方案
国家高新技术企业,专精特新中小企业,深圳知名品牌

服务热线:13823680921

13510090193

温馨提示:

行业动态

当前位置: 首页 > app雷竞技 > 行业动态

平板线夹自动装配设备技术规范及要求

日期:2018/06/04
分享至:

一 基本要求

1、产量及节拍要求

平板线夹自动装配设备须满足单班产量不低于3000只的要求(单班有效时间按7.5小时计);专机的加工节拍时间不大于8秒/件。

2、精度要求

产品装配后需满足图纸(见附件)对产品的要求。

3、数量要求

操作人员配置不超过2人。

4、使用寿命

专机正常使用寿命不低于10年。

5、货期要求

预付定金后,120天内交货(包含调试时间)。

二 、装配加工要求

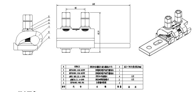
1、平板线夹零件组成:

平板线夹座、平板线夹盖、SUS304全螺纹六角螺栓M12×70(2件)、SUS304六角螺母(2件)、SUS304弹簧垫圈、SUS304平垫(4件)。

2、装配加工内容(如图):

A、线夹工作部位涂油脂;B、按下图组立装配。

三 机床要求

1、结构形式

机床结构可采用转盘式或滑台式。

2、执行标准

GB 5226.1 机械安全 机械电气设备 第1部分 通用技术条件

GB/T 17421 机床检验通则

3、工作环境和工作电压

(1)工作环境温度:0~45℃;

(2)湿度:①连续:相对湿度75%以下不结露;②短时:相对湿度95%以下不结露。

(3)电压:工频380V。

4、配置要求

(1)床身尽可能采用铸造床身,若采用焊接床身须保证焊接质量;

(2)整机须有封闭护罩,整体防护;

(3)夹具采用油压或气压自动夹具,须保证装夹和加工过程中对工件表面无损伤;

(4)电控系统所有元器件采用国内外知名品牌,电器柜配备空调冷却系统;

(5)机床需有自动润滑系统;

(6)主轴、导轨、伺服电机、动力头等主要单元采用国内外知名品牌。

5、附件要求

(1)厂家需提供优质夹具,扳手等安装操作工具1组,地脚螺栓、机床垫铁等1套,备用易损件1套;

(2)使用说明书(机械、电气)各1套,数控系统资料1套,机床合格证明书、装箱单等资料1套。



好品质-选荣德,22年研发自动喷涂设备经验,国家高新技术企业,七百平米实验室提供免费试机打样!免费试喷打样热线:138 2368 0921 白小姐

喷涂案例视频//www.bakspindjs.com/

标签:
Baidu
map